Rhiem
Pollok
Quartier Heidestraße
Quartier Heidestraße
Gewerbe, Stadtviertel
Berlin
Parallel zur Berliner Heidestraße und zur Bahntrasse nördlich des Hauptbahnhofs liegt das Gebäudeensemble aus neun Gewerbebauten. Die in einer Reihe stehenden Gebäude werden durch fünf Hochhäuser akzentuiert. Die drei Hauptgebäude, am südlichen Ende, am nördlichen Ende und am Nordhafenplatz setzen städtebauliche Akzente und reagieren mit ihren Dimensionen und unterschiedlichen Höhen passgenau auf die vorgelagerten Freiräume, zwei schmalere Hochhäuser besetzen die Straßenfluchten zur Heidestraße. Die Industriegeschichte des Ortes mit seinen ehemaligen Lager-, Fabrik- und Bahngebäuden war Ankünpfungs- und Ausgangspunkt für die Entwicklung der Gebäudetypologien und deren Gestaltung. Die präzise positionierten und typologisch kraftvollen Gebäuden bilden so den Rahmen für neues Leben entlang der Heidestraße.
Fotos Andrew Alberts
Aufgabe Zeitraum
Projektleitung für EM2N 2017–2022
Badeanstalt Niemegk
Badeanstalt Niemegk
Bäderbau
Niemegk
Die idyllisch am historischen Wasserturm gelegene Badeanstalt Niemegk ist seit 1929 gebauter Ort für die Schwimmtradition in Niemegk. Seitdem wird hier fleißig Schwimmen gelehrt, gelernt, trainiert und genossen. Das Freibad fungiert zudem als Standort vielfältiger kultureller Veranstaltungen und trägt so im Hinblick auf die „weichen“ Standortfaktoren zur Attraktivität der Stadt Niemegk als Wohnort bei.
Die geplante Sanierung mit Beckenumbau, neuer Beckenauskleidung aus Edelstahl und einer neuen 3m-Sprungplattform ist für den Erhalt und die Weiterentwicklung des Schwimmstandorts Niemegk von grundlegender Bedeutung. Durch den Beckenumbau mit vier 25m-Schwimmbahnen, einer neuen Sprunganlage, einem Nichtschwimmerbecken, einem Kinderplanschbecken und den begleitenden Maßnahmen zur Barrierefreiheit verändert sich das Schwimmangebot grundlegend. Davon profitieren alle Nutzergruppen, die Kindern der benachbarten Kita und Schule, die Schwimmvereine, ältere Menschen, Menschen mit Beeinträchtigungen, jene, die sich erholen oder sportlich betätigen wollen etc..
Ein besonderes Augenmerk liegt bei der Sanierung auf der nachhaltigen Nutzung der Ressourcen. Es soll eine dauerhafte und wartungsarme Konstruktion des Beckens in den historischen Abmessungen von 33 ⅓ m Länge und 16 ⅔ m Breite sowie energiesparende und aus erneuerbaren Energien betriebene Anlagentechnik zur Erwärmung des Schwimmbadwassers in den Übergangszeiten eingesetzt werden.
Aufgabe Zeitraum
LP 1–9 2024–2026
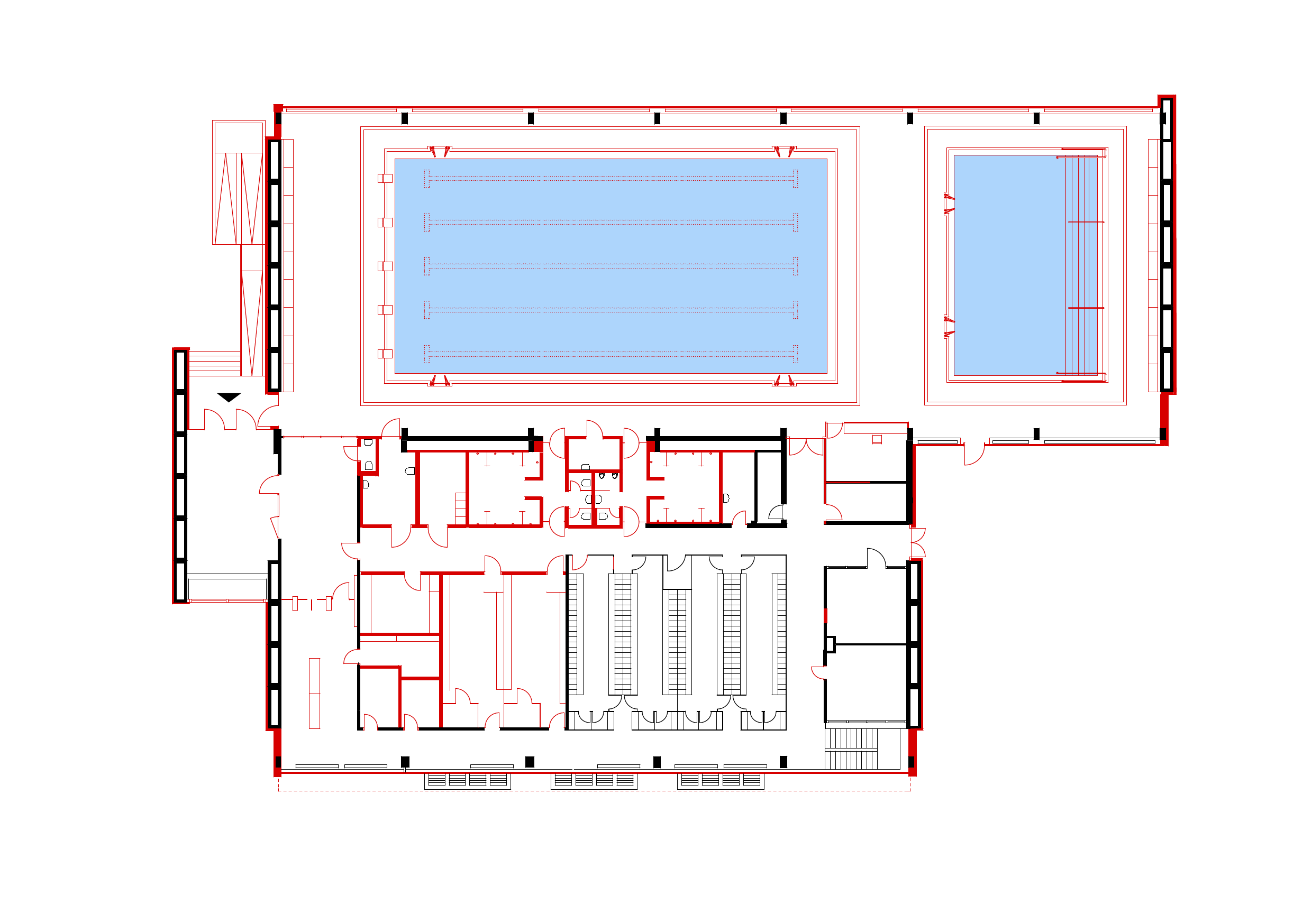
Schwimmhalle Thomas Mann
Schwimmhalle Thomas-Mann-Straße
Bäderbau
Berlin
Die Schwimmhalle wurde 1978 als DDR-Typenbau Volksschwimmhalle Typ C in Stahlbetonfertigteilbauweise errichtet. Die als VT-Falten bekannten, weit spannenden und weit auskragenden Dachschalen geben dem Gebäude sein markantes Äußeres. Die umfangreichen Instandsetzungsarbeiten umfassen neben den wassertechnischen Anlagen und einer grundlegenden Überarbeitung der Schwimmbecken insbesondere die technische und energetische Ertüchtigung des Dachs sowie den Neuaufbau der Fassaden. Die neue Profilbauglasfassade mit transluzenter Wärmedämmung sorgt für eine blendfreie und gleichmäßige Ausleuchtung der Schwimmhalle. In Anlehnung an die grob strukturierten und farblich changierenden Waschbetonfassaden des Bestands werden die energetisch ertüchtigten Gebäudeaußenwände mit einem Rillenputz in zweifarbigem Anstrich versehen. Die im Bestand vorhandenen, den Umkleidetrakt dominierenden, rosafarbenen Umkleideschränke dienen als Ausgangspunkt für das Farbkonzept der Innenräume. Der Farbton wird im Fliesenboden der Schwimmhalle sowie in der neuen Akustikdecke aufgegriffen. Zusätzliche frei angeordnete kontrastierende Farbakzente in Blau und Gelb ergänzen die rosafarbenen Felder der Akustikdecke, welche als Deckenmosaik das zentrale Gestaltungselement der Schwimmhalle bildet.
Fotos Veauthier Architekten
Aufgabe Zeitraum
Projektleitung für Veauthier Architekten 2014–2016
Wochenendhaus Godendorf
Wochenendhaus Godendorf
Wohnungsbau
Godendorf
Das Wochenendhaus mit 60 m² Grundfläche liegt in der kleinen Gemeinde Godendorf, einem wald- und wasserreichen Gebiet im südlichen Teil der Mecklenburgischen Seenplatte. Das Haus hat eine lineare Ausrichtung mit einem Fokus auf den Wohnraum, der sich mit dem nach Westen ausgerichteten Panoramafenster zum Mühlenbach und Waldrand orientiert. Das Projekt verfolgt die Idee des „Einfachen Bauens“: einfache Konstruktionen mit einfachen Details, einfache Gebäudeorganisation, ressourcenschonend und technikarm. In diesem Sinne entsteht das Haus aus monolithischen Mauerwerks- und Holzaußenwänden sowie einem flach geneigten Sparrendach mit Blechbekleidung . Die Verwendung von natürlichen Materialien wird im Innenraum fortgesetzt. Das Low-Tech Haus wird über elektrisch betriebene Infrarotheizkörper beheizt. Auf einen Haustechnikraum kann deshalb verzichtet werden. Einfaches Bauen bedeutet aber nicht nur einen bewussten Verzicht auf Technik, vielmehr stehen eine Rückbesinnung auf das Notwendige und der Mensch mit seinen Bedürfnissen an sich im Mittelpunkt. Belohnt wird die Reduktion auf das Wesentliche mit niedrigen Investitions- und Betriebskosten.
Aufgabe Zeitraum
LP 1–8 2023–2025
Baugruppe Berlin
Baugruppe Rigaer Straße
Wohnungsbau
Berlin
Das Baugruppenprojekt im Berliner Bezirk Friedrichshain-Kreuzberg umfasst 47 Wohneinheiten. Es steht im Kontext mit sechs weiteren Punkthäusern, die sich im Blockinneren zwischen Liebigstraße und Rigaer Straße befinden. Die Straßenflucht wird durch das Gebäude nicht komplett geschlossen, sondern mit einem öffentlich zugänglichen Platz unterbrochen, der die städtebauliche Anordnung erlebbar macht und den Blick auf das Gesamtensembles auf dem abfallenden Grundstück öffnet. Das Gelände verspringt von Vorder- zu Rückseite des Gebäudes um ein Geschoss, was sich in der Wohnungstypologie (Maisonette) im Erd- und Untergeschoss widerspiegelt. Die Regelwohnungen weisen einen Grundriss mit drei bis vier Zimmern auf, während die Grundrisse im Dachgeschoss und zum Platz hin variieren.
Fotos Simon Menges
Aufgabe Zeitraum
Projektleitung für zanderroth architekten 2014–2017
Rathaus Korbach
Neues Rathaus Korbach
Wettbewerb
Korbach
Ausgangspunkt für die Wettbewerbsaufgabe war die Entscheidung, das baufällige und ineffiziente Rathausgebäude aus den 70er Jahren durch einen Neubau zu ersetzen. Das angrenzende historische Rathaus sowie ein weiteres denkmalgeschütztes Gebäude sollen weiter genutzt werden. Der Wettbewerbsbeitrag sieht vor, die historischen Gebäude sowie das neue moderne Verwaltungsgebäude um einen zentralen Platz herum zu gruppieren. So kann eine historische Wegeachse (Verlängerung Rathausgasse) reaktiviert werden sowie das historische Rathausgebäude stadträumlich freigestellt und in seiner Bedeutung gestärkt werden. Das neue Rathausgebäude fügt sich durch seine Positionierung, seine Kubatur und Physiognomie in den historischen Stadtkörper ein. Der Verlauf der Fassade unterteilt den großen Baukörper in kleinere Abschnitte, nimmt so die Körnung des mittelalterlichen Stadtkerns auf und lehnt sich gestalterisch an die das Stadtbild prägende Giebelbauweise an.
Aufgabe Zeitraum
Wettbewerb, mit Burkhard Köhler und TREIBHAUS Landschaftsarchitektur 2017
Haus in Nürnberg
Haus in Nürnberg
Wohnungsbau
Nürnberg
Der Ort Neunhof ist einer der nördlichsten Gemeindeteile der Stadt Nürnberg und wurde 1246 erstmals erwähnt. Auf einem ansteigenden Grundstück am Rande des Ortes soll ein großzügiges Haus für eine junge Familie entstehen. Auf dem weitläufigen Grundstück wird das Haus an der obersten Stelle angeordnet. Von dort hat man einen wunderschönen Ausblick über den Ort und auf das Schloss, das auf einer benachbarten Erhöhung liegt. Die Bereiche sind um einen Funktionskern herum organisiert und durch einen Niveauversprung im EG sowie eine große vertikale Verbindung zwischen den beiden Ebenen räumlich strukturiert. Bei der Materialisierung werden in dieser Region traditionell verwendete Materialien und Farben aufgegriffen und neu interpretiert.
Aufgabe Zeitraum
LP 1–2 2018
Hallenbad Sonnenberg
Hallenbad Sonnenberg
Bäderbau
Stuttgart
Der zu errichtende Ersatzneubau für das Hallenbad Sonnenberg befindet sich im Stuttgarter Süden. Die Baugrenzen aus dem für das Bestandsgebäude entwickelten Bebauungsplan von Anfang der 70er Jahre gelten weiterhin. Die aus dem Raumprogramm resultierenden Flächen sind gewachsen. Der Baukörper des Hallenbads wird sich in unmittelbarer Nachbarschaft zur kleinteiligen Bebauung des Stadtteils Sonnenberg befinden. Diese drei herausfordernden Anforderungen bilden zusammen den Ursprung für die städtebauliche und architektonische Idee unseres Beitrags. Um entwerferisch/planerisch handlungsfähig zu sein, wird die gesamte Fläche innerhalb der Baugrenze als Decke über dem Erdgeschoss angenommen, unter der dann die einzelnen Funktionen sinnvoll gruppiert und strukturiert als Kuben angeordnet werden können und die Räume für die Schwimmhallen und Umkleidebereiche aufspannen. Die einzelnen Becken drücken sich als Herzstücke des Hallenbades durch die Deckenscheibe nach oben hindurch und formen so einen über dem Erdgeschoss durch seine Funktionen gegliederten Baukörper, der zwischen der geringen Körnung der flankierenden Wohnbebauung und der großen Struktur Hallenbad zu vermitteln mag. Die tragende Konstruktion des Gebäudes ist als Hybrid zwischen Massivbau und Holzbau angelegt. Dort, wo eine massive Konstruktion notwendig und/oder sinnvoll ist, wird diese verwendet. Dort, wo Holz als konstruktiver Baustoff verwendet werden kann, kommt es zum Einsatz. Der Wettbewerbsbeitrag wurde zusammen mit plus4930 erarbeitet.
Aufgabe Unterstützung Zeitraum
Wettbewerb mit plus4930 (letzte Runde) Kannewischer Group, Transsoloar, Brandschutz Consulting, Trabert Ingenieure 2025
Das Architekturbüro Rhiem Pollok wurde von Pola Pollok und Tony Rhiem gegründet. Wir beschäftigen uns seit über zwei Jahrzehnten mit den Themen der Architektur und deren Umsetzung, vom Detail bis zum Städtebau. Erfahrung haben wir in national und international tätigen, renommierten Architekturbüros gesammelt und dabei Kompetenzen vorrangig in den Bereichen Schwimmbadbau, Büro- und Verwaltungsbau, sowie Wohnungsbau erworben. Für unsere Auftraggeber und Partner bauen wir aus, um, weiter und neu, beraten und begleiten bei der Entwicklung neuer Projekte. Wir lassen uns gerne auf die Bedürfnisse der Bauaufgabe ein und sind immer interessiert an neuem. Unsere Architektur soll vielseitig, selbstbewusst und respektvoll sein. Wir sind uns den Herausforderungen unserer Zeit und der damit verbundenen Verantwortung für Bauende bewusst.
Das Thema ökologische und soziale Nachhaltigkeit steht für uns als Architekten im Zentrum unserer Arbeit. Aus unserem grundsätzlichen Interesse heraus und dem Bewusstsein der Notwendigkeit, die Energiewende umzusetzen, haben wir unser Know-How auf diesem Gebiet stetig weiterentwickelt und uns entsprechend qualifiziert.
Pola Pollok,
Architektin, Dipl.-Ing. FH
2007
Diplom, Peter Behrens School of Architecture, Düsseldorf
2008–2010
Selbstständige Arbeit, Düsseldorf
2011–2014
Büro Stumpf Architekten, Berlin
seit 2013
Mitglied der Architektenkammer Berlin
2014–2017
Veauthier Achitekten, Berlin
2017–2024
Studio Gollwitzer Architekten, Berlin
2022
Gründung Rhiem Pollok
Tony Rhiem
Architekt, Dipl.-Ing.
2009
Diplom, RWTH Aachen University‚
2009–2011
NSH Architekten & Thomas Hillig Architekten, Berlin
2011–2012
Wiel Arets Architects, Berlin
2012–2017
Zanderroth Architekten, Berlin
seit 2015
Mitglied der Architektenkammer Berlin
2017–2022
EM2N Architekten, Berlin
2022
Gründung Rhiem Pollok
Rhiem Pollok Architekten PartGmbB
Adalbertstraße 6A, 10999 Berlin
0049 (0) 157 76808130
info@rhiempollok.de
Impressum
Rhiem Pollok Architekten PartGmbB
Adalbertstraße 6A, 10999 Berlin
0157 768 081 30
mail@rhiempollok.de
Geschäftsführer
Pola Pollok, Dipl.-Ing. (FH) Architektin, Mitglied der Architektenkammer Berlin Nr. 14319
Tony Rhiem, Dipl.-Ing. Architekt, Mitglied der Architektenkammer Berlin Nr. D15113
Zuständige Kammer
Architektenkammer Berlin, Alte Jakobstraße 149, 10969 Berlin
Berufsrechtliche Regelungen
Die berufsrechtlichen Regelungen sind einsehbar auf der Homepage der Architektenkammer Berlin: https://www.ak-berlin.de/architektenkammer-berlin/regelwerke.html.
Verbraucherstreitbeilegung / Universalschlichtungsstelle
Wir sind nicht bereit oder verpflichtet, an Streitbeilegungsverfahren vor einer Verbraucherschlichtungsstelle teilzunehmen.
Datenschutz
Diese Webseite ist bei fly.io gehostet, verwendet keine Cookies und erfasst keine personenbezogenen Daten. Bei Fragen zum Datenschutz wenden Sie sich gerne direkt an uns, per Mail an mail@rhiempollok.de oder an die im Impressum angegebene Adresse.
Gestaltung Website
Fides Sigeneger
Umsetzung Website
Jonas Pollok
Bürofotos
Anja Birkner
Urheberrecht
Die auf dieser Seite veröffentlichten Inhalte und Werke unterliegen dem deutschen Urheberrecht. Die Vervielfältigung, Bearbeitung, Verbreitung und jede Art der Verwertung außerhalb der Grenzen des Urheberrechtes bedürfen der schriftlichen Zustimmung des jeweiligen Autors bzw. Erstellers.